2568 FM 517 Rd E
San Leon , Texas 77539
- Listing Type:
- For Sale
- Listing Price:
- $750,000.00
- Property Type:
- Land
- Property Subtype:
- Retail
- Year Built:
- Listing Status:
- Active
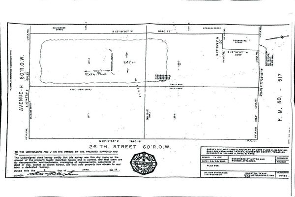
- Land Area:
- 9.23 Acres
Description:
Commercial/Residential 9.228 acres of Land for Mixed-Use Development with frontage on FM-517 in San Leon, additional acreage available. The property is located next to a RV resort with steady occupancy rates, providing the potential for Development of a Storage Facility on the property to be utilized by the growing number of RV Vacationers and Boating Community Members throughout Galveston County. An Engineered Drainage Plan meeting the city’s MUD standards has been created, with the entire property able to access to a total of (26) on-site water taps. Division of the water-taps will be negotiated and discussed prior to the sale of either available tract.
Proposed Property Development Drawings and Survey of the total property is provided:
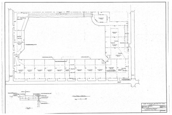
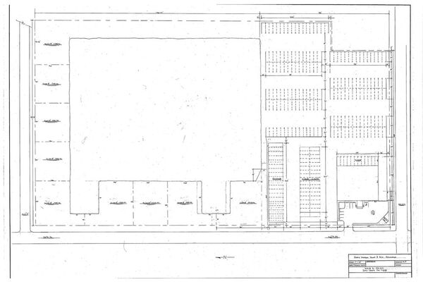
The first development rendering reflects the site plan Development of a (400) Unit RV and Boat Storage Facility on the front 9+ AC tract, with the possibility of developing (9) Waterfront Single-Family Residential Homes/Vacation Rentals surrounding the retention pond on the available additional tract.
The second development rendering reflects the site plan Development of (16) Waterfront Single-Family Residentials Homes/Vacation Rentals surrounding the retention pond. This second proposed development drawing would require the land availability of both the front 9+ AC tract and back 12+ AC tract.
Corner Property with Extensive Frontage
Ideal for Mixed Use Development
Engineered Drainage Plan Available
Additional Land Available
Owner May Consider Subdividing
Presented by:
Director of Commercial Sales and Leasing
(225) 295-0800
(225) 252-3733
Click here to emailListed by:
Keller Williams Clear Lake/NASA
Houston Clear Lake
Mortgage Calculator
INPUTS
